Dr Daniel Cid, Associate Professor of Design Studies at Winchester School of Art, has been working with Leve Projects, a Barcelona-based studio and the Arrels Foundation, a homelessness charity, on the Zero Flat. This is a completely new approach to accommodation for the long-term homeless, who often struggle to adapt to housing. The Zero Flat looks, feels and operates differently to conventional shelters and the initial project has been very successful. After its launch more than 74% of Zero Flat’s users were able to improve their living situation.
Daniel's design responds to environment of the city, the every day experience of the long term homeless and the need for community shared spaces.
“My work is in the space between design and social science. The design of the accommodation is entirely influenced by the topography of the city and a deep understanding of what it means to be chronically homeless."
Doctor Daniel Cid
Designing the Zero Flat
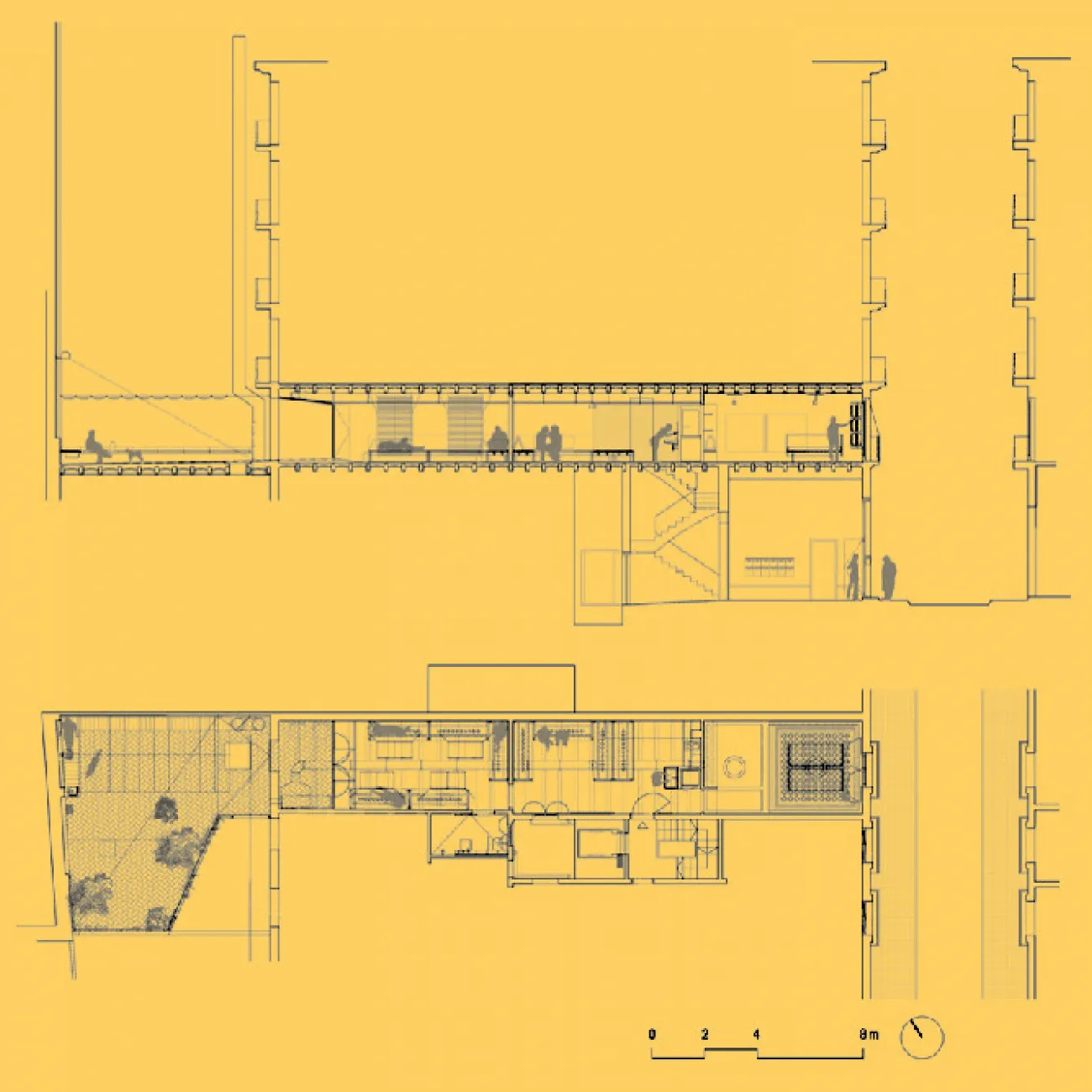
The Zero Flat project was set up to create accommodation that did not feel like a homeless shelter. Daniel wanted the space to be welcoming and intimate so he designed the Zero Flat to mimic the street: “A bench, a tree and a fountain are the three elements that compose a typical city square in Mediterranean countries." The Zero Flat has benches that can be converted into beds or tables.

Understanding homelessness
The project believes that it should draw on the experiences of those living on the streets. Daniel explains that “people sleeping on the street say it’s difficult to get used to sleeping under a roof because they are used to street lights, so total darkness can be really scary." Therefore, Daniel has designed a room without a door and open to the terrace, as one of the places where people can choose to sleep. People are also given a portable lamp so they always have access to light.
Another issue for conventional homelessness shelters is the rules. Daniel explains that, “It’s very well demonstrated through practice and theory that most of the time people suffering from chronic homelessness reject shelters because they have too many regulations." For example, shelters often don’t allow alcohol, smoking or pets. At the Zero Flat these are all allowed.

Being part of the community
A important philosophy behind the Zero Flat is to be part of the community. Daniel has designed the space so that during the day, it can be rearranged into a multipurpose room for civic events or meetings.
The community is also very involved in the management of the apartment. Staying at the accommodation, which can sleep eight to 10 people, is by invitation. A group of voluntary social workers, who know Barcelona’s chronically homeless population well and have established bonds with the community, invite individuals.
Outcomes
The first Zero Flat has been up and running in Barcelona since 2017. In its first two years, Zero Flat welcomed 77 people. As a result:
- 57 people left the streets
- 39 moved into more stable accommodation, such as a shared flat or a rented room
- 13 continued to sleep at Zero Flat
- 2 moved into a shelter
- 3 moved back to live with family
- 7 people returned to the streets
- the remaining 13 were not chronically homeless but Zero Flat helped them through temporary difficulties with accommodation.
Zero Flat’s future
Daniel has big plans for the future of Zero Flat and sharing what they have learnt. His plans include:
- replicating Zero Flat in other neighbourhoods of Barcelona
- creating a version of the flat adapted to women suffering from homelessness
- bringing Zero Flat to the UK
- putting the spotlight on the complexities of homelessness through an exhibition based around the idea of ‘making the invisible visible’.
